Site With FPP, Bishopscourt, Williamstown, Ballygunner, Co. Waterford

Sale Agreed

Viewing Appointment
To request a viewing, please complete the form below or call us on 051 85 22 33
DD slash MM slash YYYY
Time
:

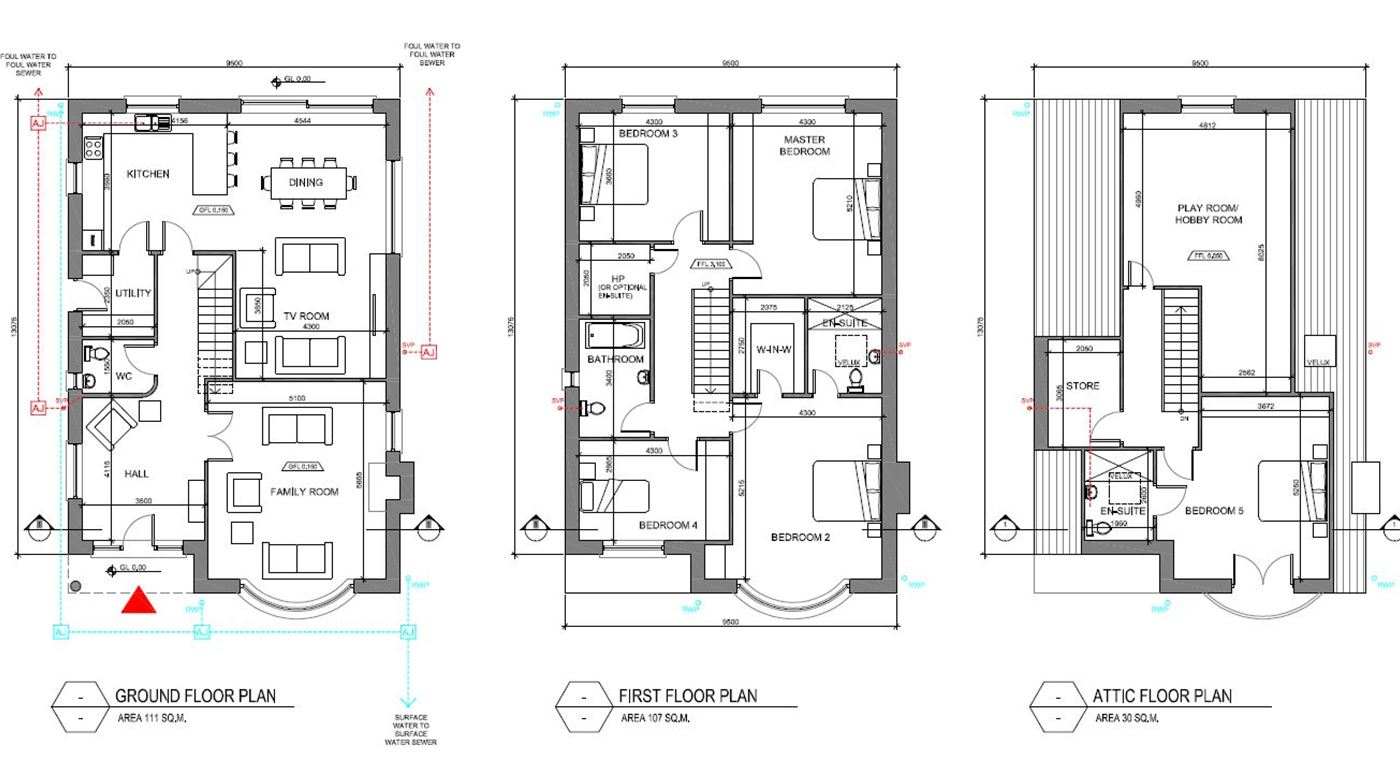
Shovel ready site with Full Planning Permission for Four No. Five bedroom split level detached homes. A grant of full planning permission received on the 22-8-19 for this development of four detached homes of c.248 sq.m / c.2,669 sq.ft. The site extends to c. 2,622 sq.m / 0.65 Acres with access provided to mains services. Each home extends to c. 248 sq.m / c. 2,669 sq.ft. and comprises of entrance hall, sitting room, open plan kitchen /dining and living room, utility room, WC, four bedrooms and two bathrooms at first floor level, with fifth bedroom, play room, bathroom and store room at second floor level.. Plans and details available upon request from DNG Reid & Coppinger Auctioneers. LOCATION The site is located just off the prestigious Williamstown Road at Bishopscourt, c. 4km from Waterford City and c.1.5km from Tesco Ardkeen and University Hospital Waterford Further information and viewing details from DNG Reid & Coppinger Auctioneers 051 842233