12 Johnstown, Waterford City, Co. Waterford
€179,000

Description
No. 12 Johnstown is a spacious three-bedroom, two bathroom, end of terrace residence with a generous rear yard, ideally located in the Johnstown area of Waterford City within minutes walking distance of a host of local amenities.
While the property is in need of some updating, it would make an excellent starter / investment given its central location.
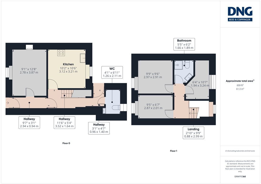
The property comprises of entrance hall, Living room, kitchen / diner, and utility with wc.
The first floor has three bedrooms and a shower room with wc. The property has benefit of with gas fired central heating and uPVC double glazing windows.
LOCATION
The property is ideally located in the popular residential area of Johnstown in Waterford City. It is centrally situated within minutes walking distance of the City Centre and all amenities including primary and secondary schools, SETU, College street campus, local shops including Tesco Poleberry, TK Maxx, Odeon Cinema and is serviced by a regular bus service.
ASKING PRICE 179,000
For further information and viewing arrangements please contact DNG Reid & Coppinger 051852233.
- FEATURES
- Large rear yard with concrete shed
- Gas fired central heaitng
Entrance Hall - 2.94 x 0.94
Tiled flooring
Living Room - 2.78 x 3.87
Laminate timber flooring. Featured open cast iron firepalce. Venetian blinds to window.
Kitchen/Diner - 3.12 x 3.21
Tiled flooring. Fitted kitchen with integrated owne and hob. Tiled splashback. Blinds to window.
Utility & WC - 1.26 x 2.11
Tiled flooring. Plumber for washing machine and dryer. WC & WHB.
Bedroom 1 - 2.97 x 2.91
Carpet flooring. Venetian blinds to window.
Bedroom 2 - 2.87 x 2.01
Carpet flooring. Venetian blinds to window.
Bedroom 3 - 1.94 x 3.24
Carpet flooring. Venetian blinds to window.
Shower Room - 1.66 x 1.89
Tiled flooirng and part walls to ceiling. WC & WHB, electric shower.
BER: D2
BER No: 102365921
Energy Performance Indicator: 292.44