Site A, Coolbunia, Cheekpoint, Co. Waterford

€225,000

Viewing Appointment
To request a viewing, please complete the form below or call us on 051 85 22 33
DD slash MM slash YYYY
Time
:

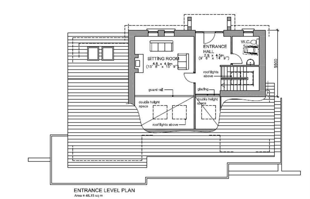
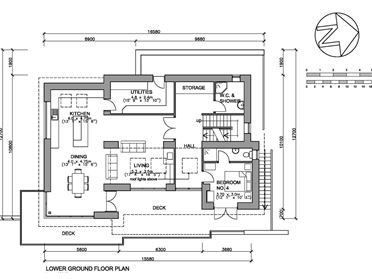
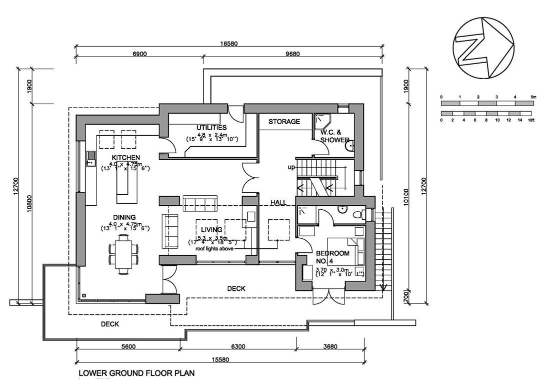
SITE A - ZONED RESIDENTIAL WITH PLANNING PERMISSION -
A unique opportunity to purchase a site of c. 0.85 Acres with breathtaking views in a riverside setting, overlooking the River Suir. With full planning permission for a modern architect designed c. 3,500 sq.ft. residence, the site has uninterrupted views of the River Suir from Cheekpoint towards Passage East and Wexford. The site has access to mains water and wastewater services and adjoins the main public roadway from Faithlegg to Cheekpoint at the upper Western side of the site, with a secondary access also from the lower Eastern side of the site at Russianside, Cheekpoint.

LOCATION
Situated on the Eastern side of Cheekpoint overlooking the estuary just above the confluence of the River Suir and the River Barrow, the property is located c. 11 km from Waterford City Centre and c. 9 km from Waterford University Hospital, c. 5km from the Passage East Car Ferry and c. 16 km from Dunmore East. The property is situated within easy walking distance of Cheekpoint Village and harbour, which has the benefit of a new marina. Local amenities also include a shop and post office, playground, and Faithlegg National School, all within easy walking distance. The site is c. 2Km from Faithlegg House Hotel and Golf Club. There are some splendid local walks and treks close by at The Minaun, while the Hurthill walk takes you on a fantastic riverside trail from Faithlegg to Passage East.

ASKING PRICE 225,000