69 O'Reilly Road, Cork Road, Waterford City, Co. Waterford
€195,000

SUITABLE FOR THE VACANT HOMES GRANT AS VACANT FOR OVER TWO YEARS.
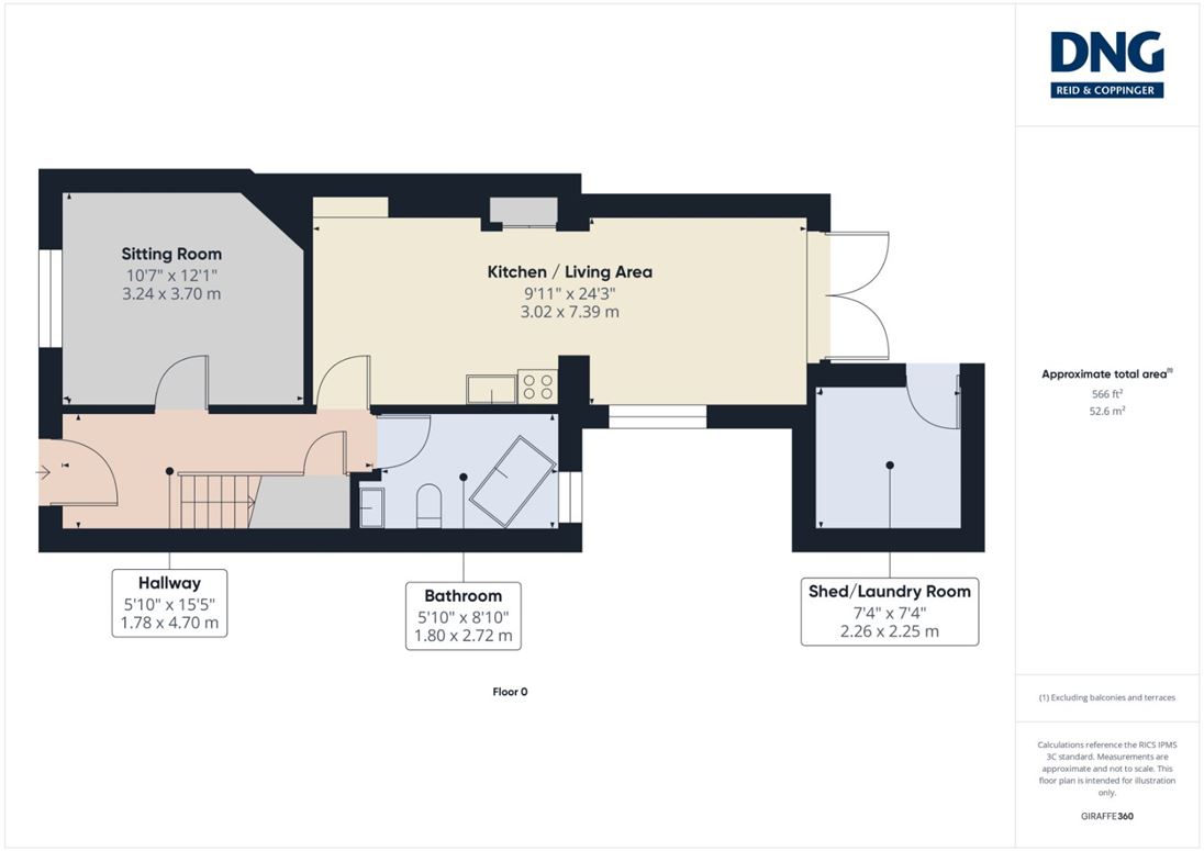
Extended three-bedroom mid terrace home, Ideally situated within walking distance of a host of local amenities, the City Centre, and SETU Waterford. No. 69 O'Reilly Road is a charming property which has been extended to include an addition reception room offering an enormous improvement to the overall living area of this property. The extension includes a velux roof light window giving ample natural light to the living and kitchen areas, with French doors opening out onto the rear garden. Overall Internal accommodation comprises of entrance hall, sitting room, kitchen / diner, living room, bathroom, three upstairs bedrooms and shower room. With gardens front and rear the property also benefits from a rear entrance, suitable to use for off-street parking or simply as garden access. The block-built garden shed to the rear has plumbing and power, and is currently used as a utility room area, and also for garden storage. The property has the uPVC double glazed windows and doors and is heated by an oil-fired central heating system.
LOCATION:
The benefits of this location cannot be underestimated, being within easy walking distance of a host of shops and restaurants on the Cork Road and Tramore Road areas. Major retailers such as IKEA, JYSK, Woodies and Morrises are all within walking distance, along with restaurants such as McLeary's, Hook & Lader, and Ramen to name but a few. A choice of primary and secondary schools are also within walking distance as well as the South East Technical University (SETU) all of which are accessible by public transport, with a well-connected bus route almost outside your door. Proximity to Waterford City Centre is a major benefit, with all the retail, entertainment and cultural experiences the city has to offer all within walking distance.
- FEATURES
- Extended three bedroom two bathroom home
- Ideally located close to a host of local amenities
- Within walking distance of the City Centre
- Walking distance of SETU and local amenities
- uPVC double glazing throughout
- Rear entrance
Entrance Hall - 1.78 x 4.70
Sitting Room - 3.24 x 3.70
Kitchen, Dining, Liviing Room - 7.39 x 3.02
Bathroom - 1.80 x 2.72
Bedroom 1 - 2.62 x 3.71
Bedroom 2 - 2.71 x 3.73
Bedroom 3 - 2.50 x 2.74
Shower Room - 1.79 x 1.80
BER: D2
BER No: 118673185
Energy Performance Indicator: 282.70