36 Stephen Street, Waterford City, Co. Waterford

€195,000

Viewing Appointment
To request a viewing, please complete the form below or call us on 051 85 22 33
DD slash MM slash YYYY
Time
:

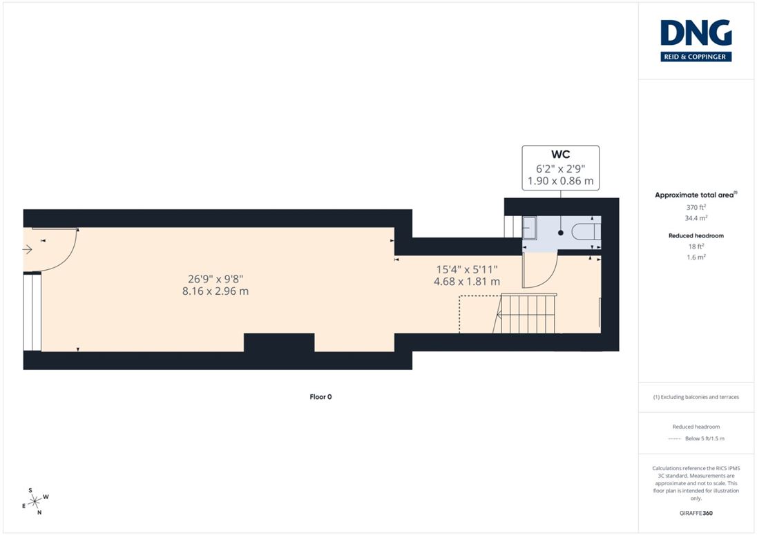
No. 36 Stephen Street is an attractive City Centre Retail Premises, ideally located just off Patrick Street, in Waterford City. Arranged over three floors, the property comprises a ground floor retail unit of c. 400 sq.ft. with retail floor area and WC, and with two upper floors of storage space, with office and canteen area. The property is located a short stroll from Broad Street and Barronstrand Street and enjoys excellent footfall with neighbouring businesses including Eye Catchers Opticians, Divine Hair, Stephen St. Barbers, Shine Bright Beauty, and many more thriving businesses nearby including Alfie Hales Sports, The Seagull Bakery, Spokes Cycles, and the acclaimed Momo Restaurant. The property is being sold with vacant possession, and would suit a host of uses given its close proximity to the main shopping thoroughfare, and most importantly with parking available out front. For further details and viewing arrangements, please contact sole selling agents DNG Reid & Coppinger on 051-852233.

Ground Floor Retail - 8.16 x 2.96

Ground Floor Retail - 4.68 x 1.81

WC - 1.90 x 0.86

First Floor Storage - 8.06 x 2.98

First Floor Storage - 2.21 x 1.79

Canteen - 1.87 x 2.77

Second Floor Storage - 3.92 x 3.08

Office - 3.88 x 2.78

BER: D1
BER No: 801133182
Energy Performance Indicator: 269.78